Plans
Site Map
Price List
More Past Projects
New Build Hub
Plans
Site Map
Price List
More Past Projects
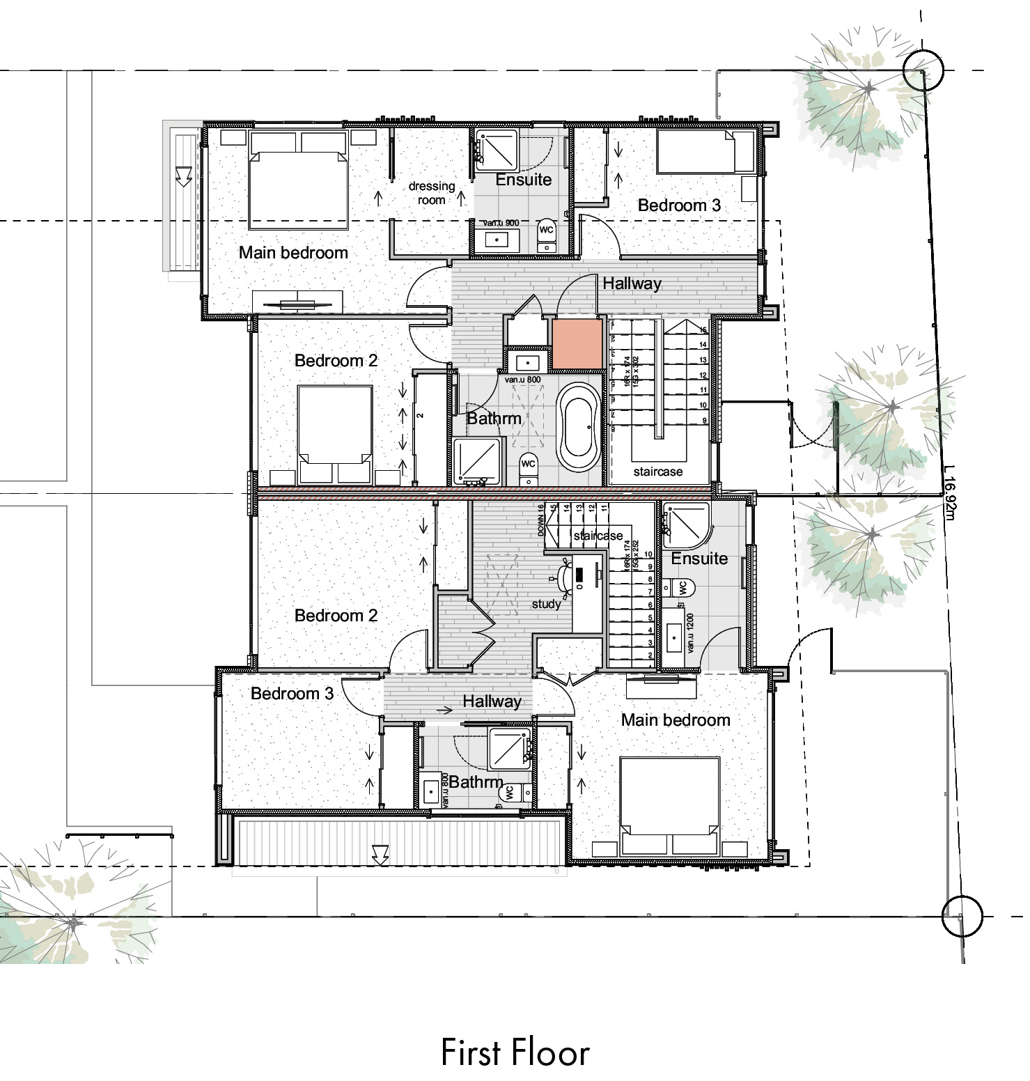
Plans- Lots 1, 2, 3
Register Interest
You must enable JavaScript to submit this form
Submit
Submit
Chat with us
, powered by
LiveChat