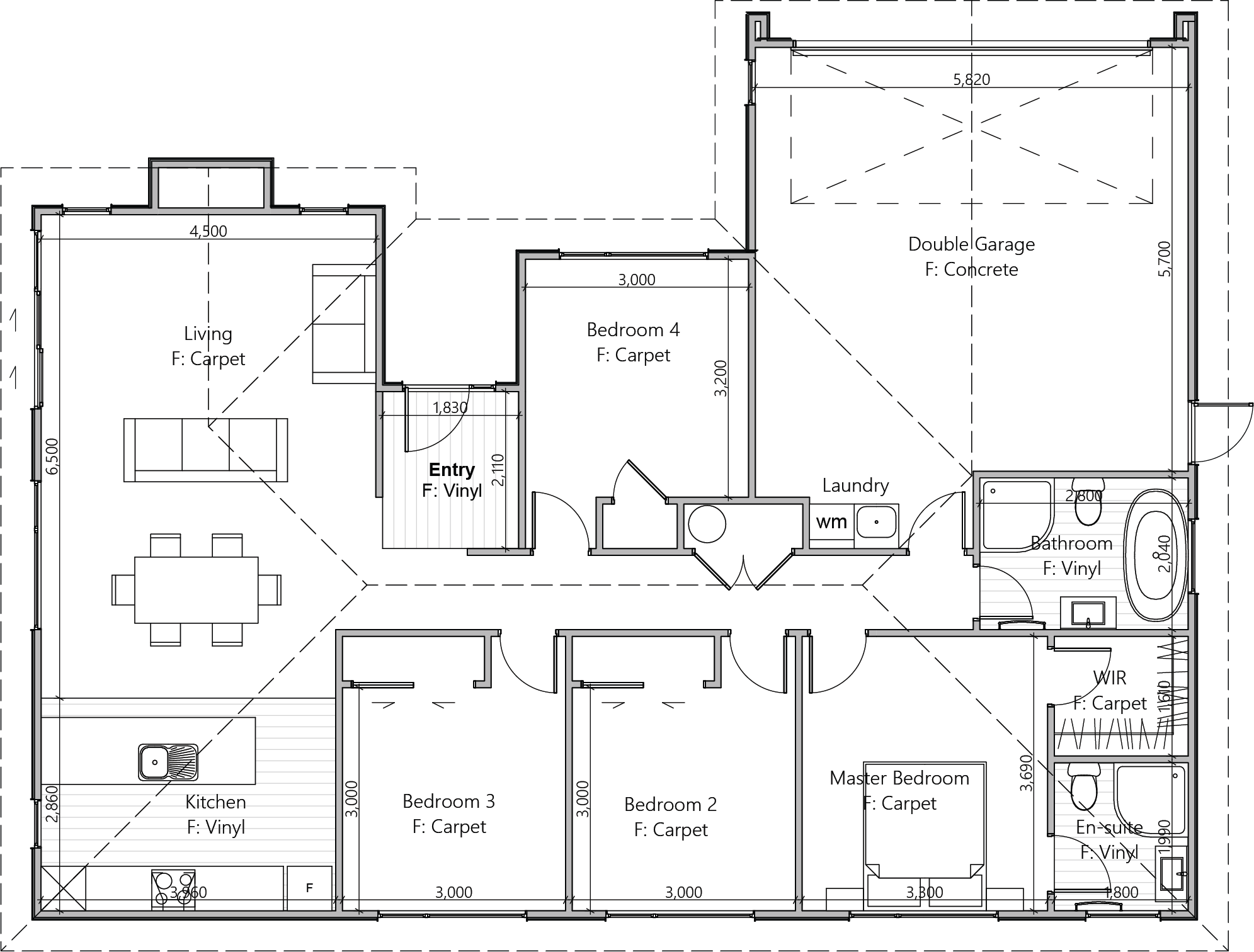
4 Bedrooms
2 Bathrooms
156 sqm Floor Area
362 sqm Land Area
Double Garage
Info Pack
You must enable JavaScript to submit this form