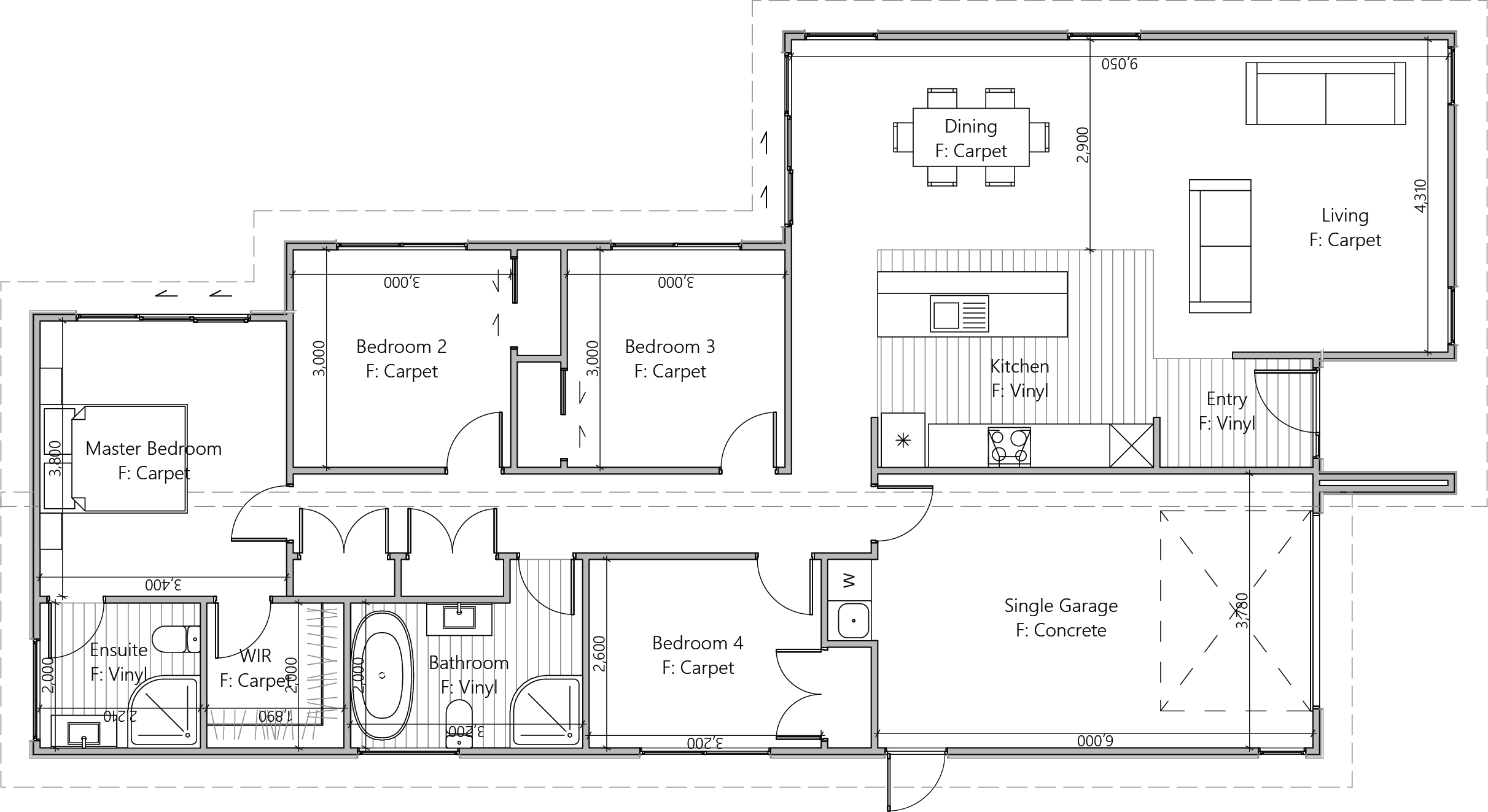
4 Bedrooms
2 Bathrooms
151 sqm Floor Area
308 sqm Land Area
Single Garage
Info Pack
You must enable JavaScript to submit this form