Location
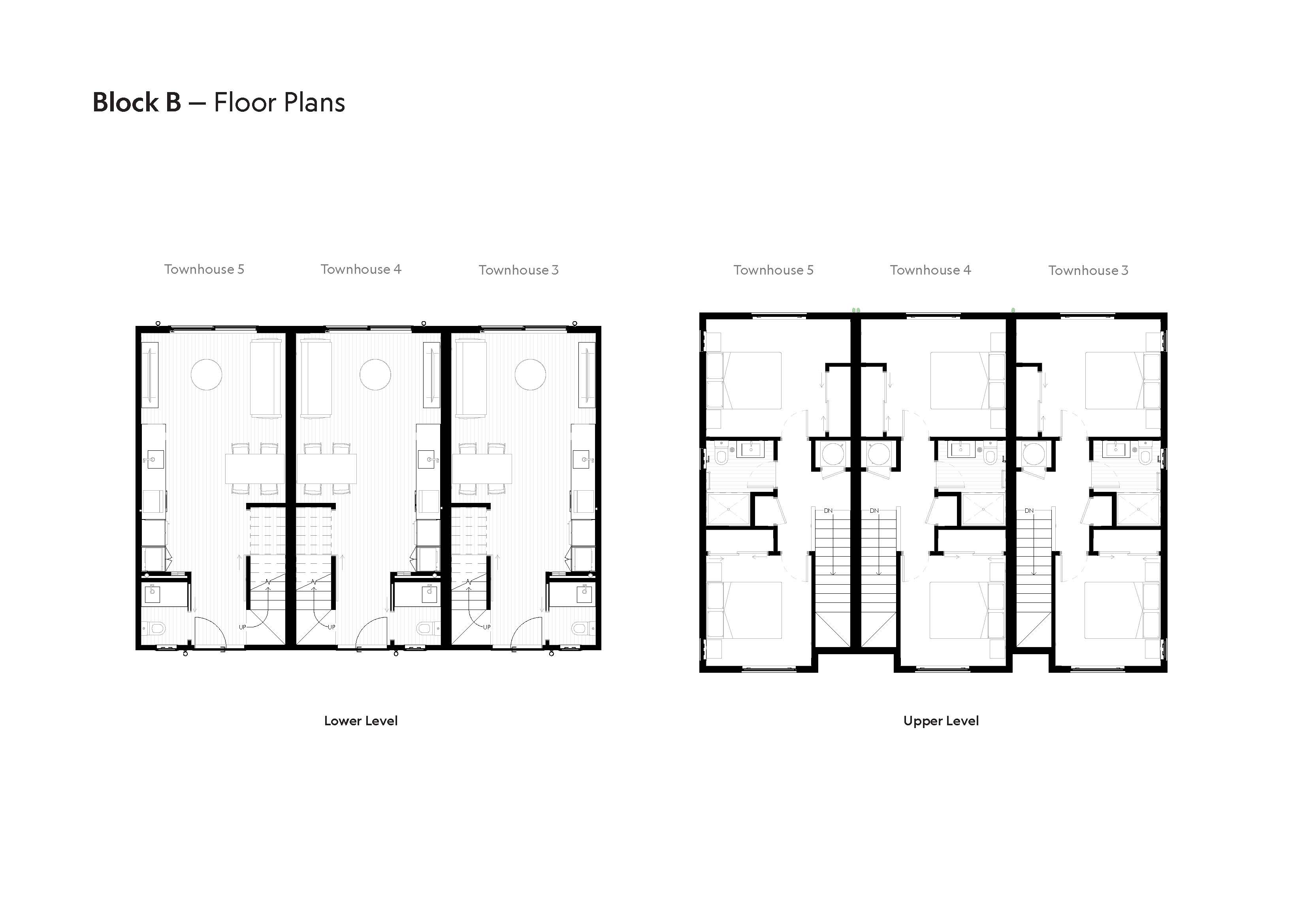
Homes
Price List
Enquire Now
More Developments
New Build Hub
Location
Homes
Price List
Enquire Now
More Developments
Homes
Register Interest
You must enable JavaScript to submit this form
Submit
Submit
Chat with us
, powered by
LiveChat